Seite wird geladen ...
Navigation ein-/ausblenden
Start
Unternehmen
Vorstellung
Ansprechpartner
Leistungen
Referenzen
Einfamilienhäuser
Mehrfamilienhäuser
Gewerbebauten
Öffentliche Bauten
Pflegeeinrichtungen
Altbau / Sanierung
Mediathek
Kontakt
Impressum
Datenschutz
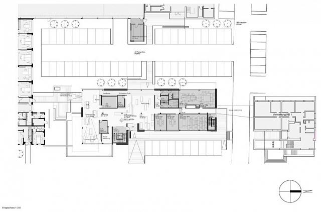
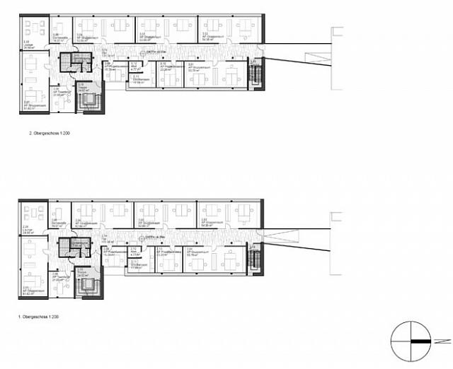
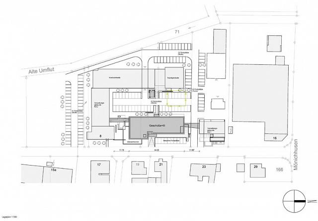
Verwaltung K
« zurück zur Übersicht
Unsere Bürozeiten
Montag - Donnerstag
08:00 - 17:00 Uhr
Freitag
08:00 - 14:00 Uhr
X
05722 / 287 44 15
Unsere Bürozeiten
Montag - Donnerstag
08:00 - 17:00 Uhr
Freitag
08:00 - 14:00 Uhr
Anrufen »
X